TSUJIMURA HISANOBU design office + moon* balance
HOME
WORKS
FASHION
RESTAURANT
SHOP
HOTEL
RESIDENCE
EXHIBITION
OTHERS
PRODUCT
INFORMATION
NEWS & TOPICS
MEDIA INFORMATION
TSUJIMURA BLOG
ABOUT US
MOON BALANCE
DESIGN PHILOSOPHY
CORPORATE PHILOSOPHY
PROFILE
MAP & ACCESS
CONTACT
WORK PROCESS
FLOW
DETAILS
DESIGN FEE TABLE
RECRUIT
JOB INFO
OPENDESK
WORKS
WORKS
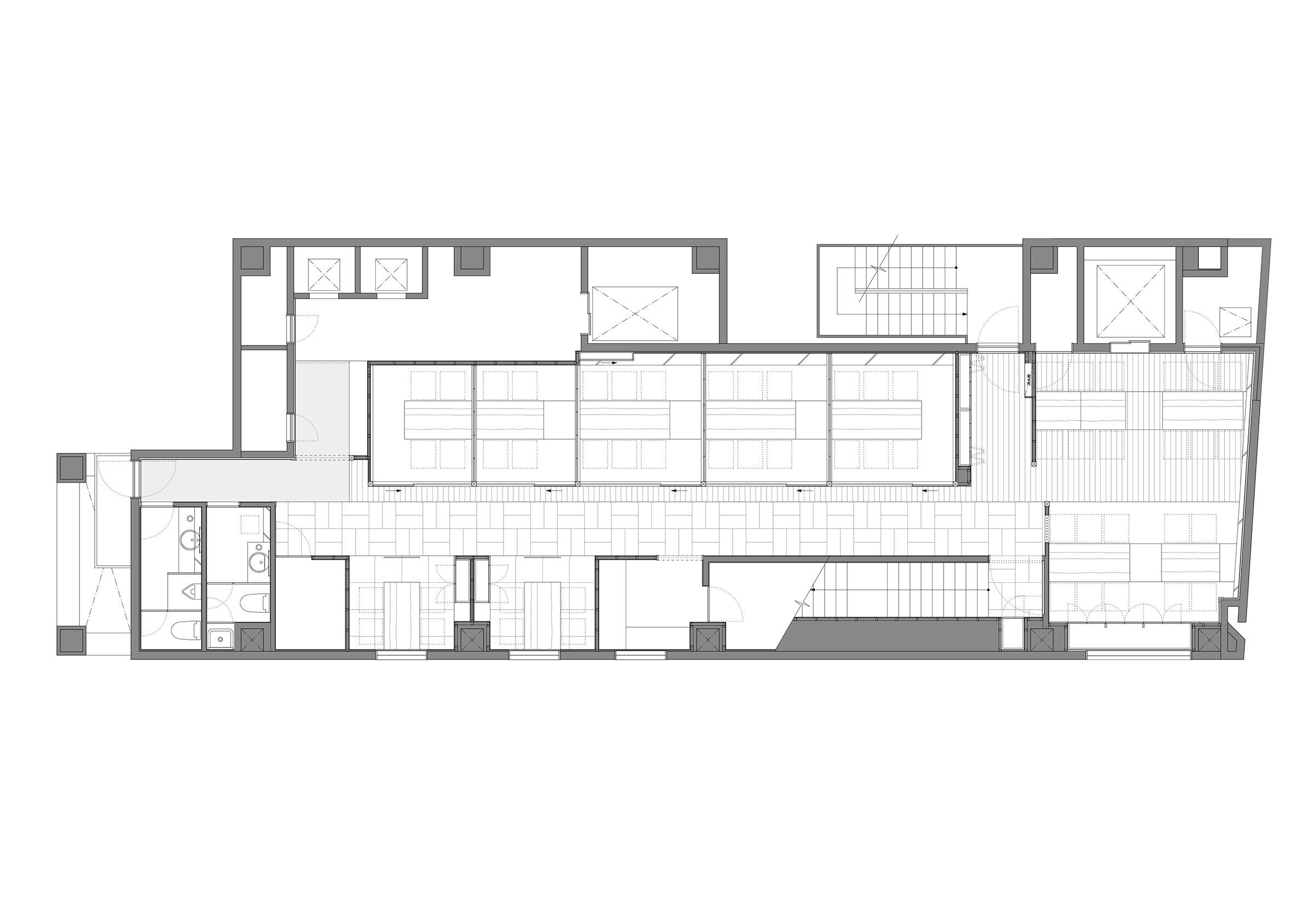
木曽路 新宿三丁目店
KISOJI SHINJUKU 3Cho-me
WORKS
>
RESTAURANT
PHOTO : Nacåsa & Partners / 繁田論
SPECIFICATIONS
WEBSITE
http://www.kisoji.co.jp/kisoji/
所在地
東京都新宿区新宿3-17-5 新宿ニュー富士ビル 4〜6F
NEWFUJI Bld.4-6F 3-17-5 Shinjyuku Shinjyuku-ku,TOKYO,JAPAN
撮影
Nacåsa & Partners / 繁田論
平面図