NOTES
◾︎cafe の定義
建築家のクリストファー・アレグザンダーはストリート・カフェの存在理由について、「人びとが衆目のなかで合法的に腰をおろし、移りゆく世界をのんびり眺められる場所としての機能」を挙げています。つまり、カフェは都市空間に溶け込むという都市生活者の潜在的な願望を叶える場所といえます。現代、カフェと称される業態は、単に喫茶の領域を超えてレストランやバー、クラブなどの様々な形態に拡大されて「軽やかな飲食店」として認知されている。言い換えれば喫茶と様々な業態のコンプレックスにおいてその特徴を表現している。
◾︎「Malebranche cafe =m sweets cafe 洋菓子屋の喫茶」
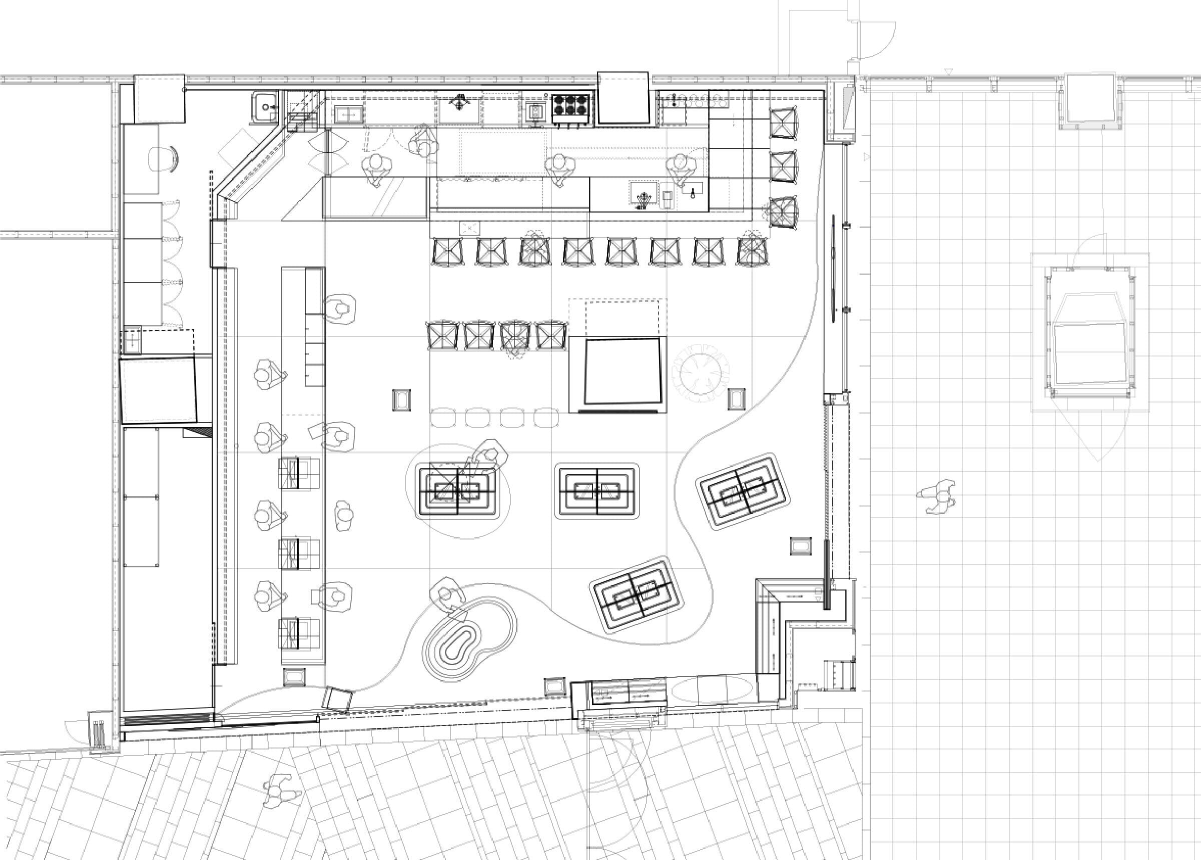
ファサードには、新しいマールブランシュのカフェの若々しさを象徴する m sweets cafe を表現するアルミニュウム鋳造した「m」のエンブレム。東西方向の客導線に茶の菓の販売を明確に提示する「茶の菓」のサインと象徴としての巨大「茶の菓松」のオブジェ。演目毎に場面が展開していく舞台の如く、市場に繰り出す屋台の様に商品毎に変化していくディスプレイと什器デザインは、「お菓子のマルシェワゴン」をイメージして、お客様導線に沿って点在させ、駅ならではのスピーディーな買い周りと楽しさを演出するビュッフェスタイルの様な販売スタイルを創ります。また、買い物カゴとレジカバーのデザインを共通にして、買う行為とレジ位置を象徴的に関連づけるaffordance(行為の可能性)のデザイン。床壁一体となった人の手によって端正に作り出される人造石研ぎ出しの暖かく有機的なフォルムと、マールブランシュ伝統の生ケーキ「モンブラン」を表現する立体組子細工の欄間壁に囲まれた環境の奥には、鏡に着色された本銀箔張りの飾り窓、パティシエの所作が映えるフルフラットな広葉樹 「栗の無垢材」によるカフェカウンターに北欧のデザインを彷彿とさせるラウンジチェアーでゆっくりとした時間が流れる。中央には、洋菓子の象徴でもある生ケーキ冷蔵ショーケースがブティックのショーウィンドウ(VP)の様に設置され、物販と喫茶のエリヤを緩やかに繋いでいる。洋菓子の販売を主軸とするマールブランシュカフェ八条口店は、優雅さと合理性を象徴する「京都クオリティ」を体験することのできる新しい洋菓子屋のカフェです。
SPECIFICATIONS
- WEBSITE
- http://www.malebranche.co.jp
- 所在地
- 京都府京都市下京区東塩小路釜殿町31−1 近鉄名店街みやこみち内
Miyakomichi Kintetsumeitengai 31-1 Kamadonocho Higashishiokouji Shimogyo-ku Kyoto - 撮影
- 繁田諭写真事務所/繁田諭
- 平面図












