NOTES
祇園花見小路の石畳の露地に建てられたお茶屋建築群の中に現れる「菓子wabiya」は、「shop in shop in shop=入れ子構造の空間で京町家に挿入された洋菓子の箱と飲食の箱。
自然素材を「素」のまま、日本の伝統技術で丁寧に仕立てられた空間で提供する京都クオリティーのアシェットデセールです。
SPECIFICATIONS
- クライアント
- 株式会社ロマンライフ
- WEBSITE
- https://www.romanlife.co.jp
- 所在地
- 京都市東山区祇園町南側570番地123
123, 570 , Minami-gawa, Gion-machi, Higashiyama-ku, Kyoto-shi, Kyoto - 竣工
- 2025年10月23日
- 設計
- 辻村 久信・慎 允偵
- 協力
- グラフィクデザイン 株式会社おいかぜ
- 施工
- 株式会社あめりか屋 井本 久雄
- 撮影
- RYO KAWANO
- 工事種別
- 新装
- 用途
- 物販・喫茶
- 計画面積
- 53.16㎡
- 工期
- 2025年7月31日〜2025年10月22日
- 施工協力
- 照明器具 株式会社モデュレックス 田口 隼人 泉 香葉
特注家具 FUTURA家具工作所 岡田 好生
株式会社アルク 藤本 清春
陶板サイン 株式会社陶光菴 奥田 和樹
切文字サイン 株式会社ダイカン 寺田 優
石材 松下産業株式会社 駒澤 和弥
竹編み 竹又 中川竹材店 中川 裕章
冷蔵ショーケース 株式会社アリガ 武田 祐平
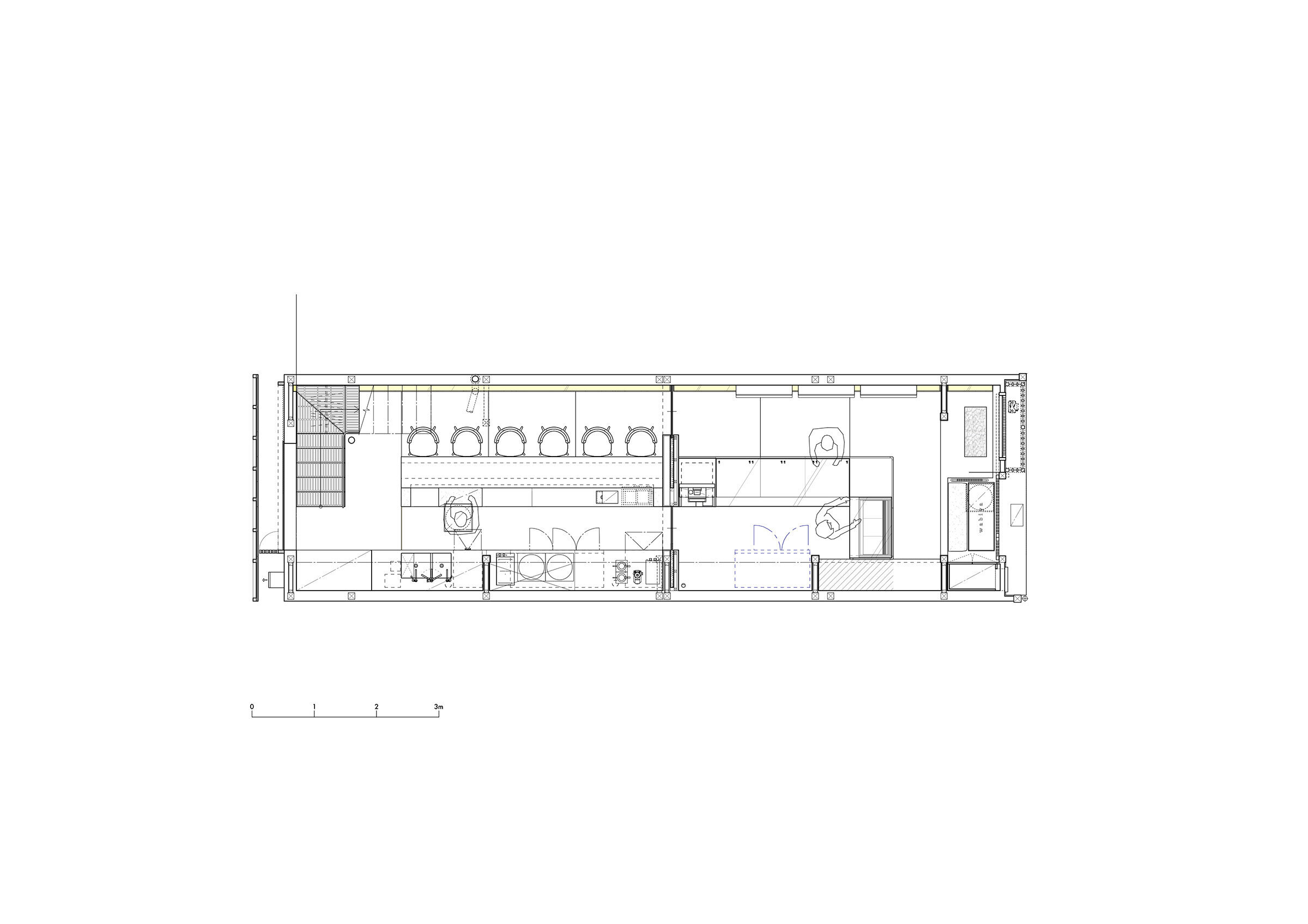
厨房機器 株式会社タニコー 古谷 忠雄 - マテリアル
- 床(屋外) モルタル下地 洗い出し
床(屋内) ベタ基礎 モルタル金ゴテ押え.ウレタンクリア塗装 t3mm.真鍮目地入れ
床(厨房) モルタル下地 長尺シート張り
壁① PBt12.5下地 t1.5mm.SUS-PL.バイブレーション仕上.銅色カラークリア塗装
壁② KOBAU下地紙 クイック・イジー(骨材なし)特注色ローラー2回塗装
壁③ PBt12.5下地 t20mm.黄竜山石(600×250)張り.水磨き仕上
天井(物販) PBt12.5下地 t1.5mm.SUS-PL.バイブレーション仕上.銅色カラークリア塗装
天井(喫茶) KOBAU下地紙 クイック・イジー(骨材なし)特注色ローラー2回塗装
什器天板・腰 t20mm.黄竜山石(600×250)張り.水磨き仕上
カウンター天板 t50mm.ウォールナット無垢板.ウレタンクリア塗装
吊戸棚 ウォールナット無垢羽目板張り.ウレタンクリア塗装
階段 t9mm.ボーダータイル(イリーデ315)張り
石塀 DS-SFLフラット.タツヤマイエローセメント系人造石張り - 平面図














