NOTES
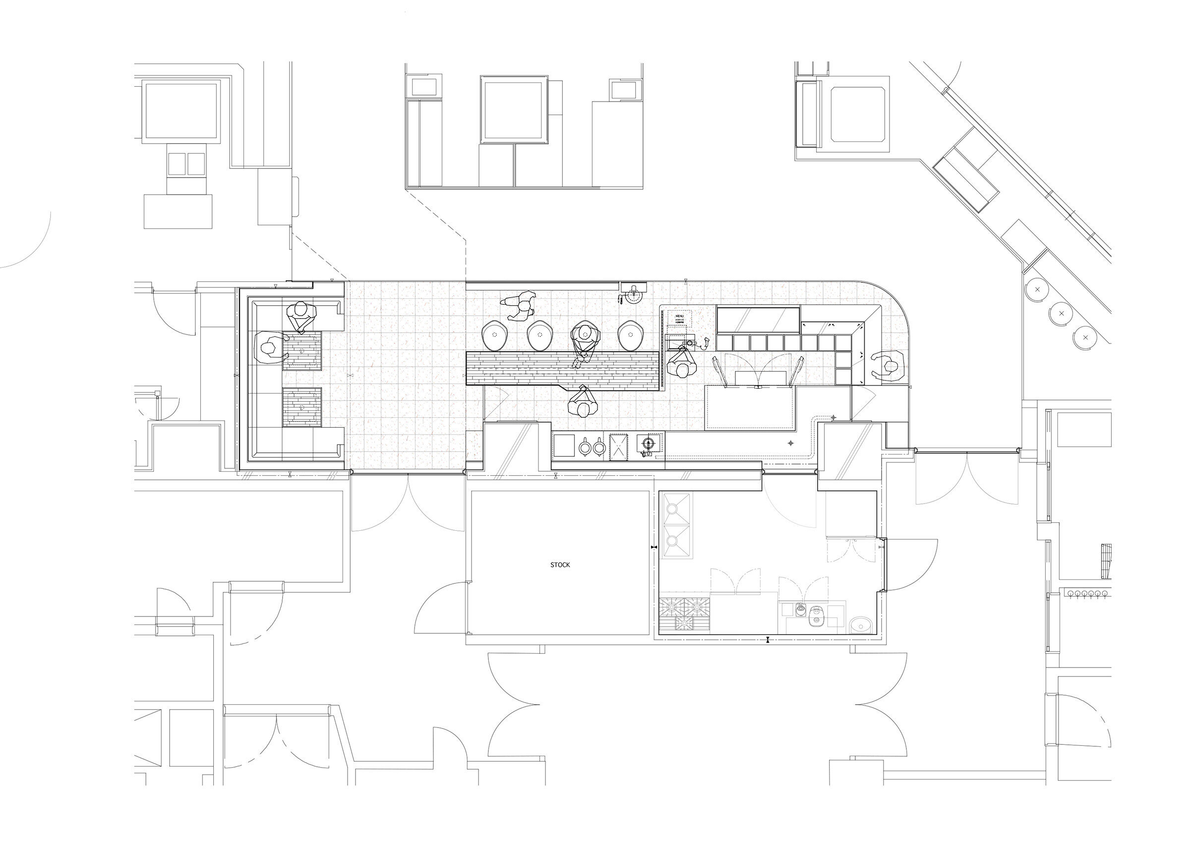
百貨店の 特に地下階のデザインの場合、混雑する売り場環境の中で遠くから見て菓子屋と解る「遠視認性」と近くで見て美味しそうと感じる「近視認性」の共存が求められます。
さらに伊藤軒高島屋京都店の場合、物販店の買い物の速度と茶寮の飲食の速度を許容する環境。さらに、施設動線により二分化された茶房のデザイン的な統合等様々な要件をクリアしなければなりませんでした。
「左回りの法則」による動線によってより意識しやすい物販コーナーの計画、物販から茶寮へ緩やかにお客様の目線の高さを変えるポジション、照明の演出によるスピード感のある物販とゆったりと楽しむ飲食(パフェ)の時間軸の融合をブランドのアイデンティティーを表現する自然素材と伝統の技術を使いながら緩やかに統合しました。
例えば、主力商品のアップルパイを連想させる「林檎の木のカウンター」、「版木からつくった林檎柄の京唐紙の光壁」、「昭和の懐かしさ 三和土風の人工大理石の研ぎ出し」等は、その象徴です。
※左回りの法則/右脳は、視界の左側に見えるもの、左脳は右側に見えるものを主に担当して処理しています。 そして、右脳は、左脳よりも感覚的に空間を把握することが得意です。つまり、左回りによって、左側の空間にあるものに注意を向けながら感覚的に空間を把握して進めるため自然です。右利きの人は左手でカゴを持ち、右手で商品をとることが多いため、左回りの配置の方が商品を取りやすく、一般的に好まれやすいとも言われます。
SPECIFICATIONS
- クライアント
- 株式会社伊藤軒
- WEBSITE
- https://www.kyoto-itoken.co.jp/
- 所在地
- 京都府京都市下京区四条通河原町西入真町52 高島屋京都店 B1F
Takashimaya Kyoto Store, B1F, 52 Shijo-dori Kawaramachi Nishi-iru, Shimogyo-ku, Kyoto City, Kyoto - 竣工
- 2025年4月 7日
- 設計
- 辻村 久信 大貫 善哉 吉田 沙穂
- 協力
- 特注和紙 株式会社丸二 豊本 裕子
照明計画 ウシオライティング株式会社 山田 隼人
サイン 株式会社ダイカン 寺田 優
木製テーブル・カウンター天板 FUTURA家具工作所 岡田 好生
冷蔵Gケース 株式会社保坂製作所 下村 修一
厨房 ホシザキ京阪株式会社 柳原 聡 - 施工
- 大和工業株式会社
- 撮影
- 繁田諭写真事務所 繁田 諭
- 工事種別
- 改修
- 用途
- 物販
- 計画面積
- 44.7㎡
- 工期
- 2025年3月10日〜2025年4月 6日
- マテリアル
- 床 t20mm 300角 テラゾータイル/塩ビ長尺シート
腰壁 テラゾー左官塗り
壁 左官塗り
光壁 強化ガラス+不燃特注和紙ちどり張り
天井 左官塗り - 平面図






