NOTES
躍動感=店全体が生ケーキのアトリエ。
他とは違う空間の独自性=店全体が生ケーキ、巨大なケーキの一部分に入っていくようなワクワク感。
知的ラグジュアリー=北山本店の洋風建築の老舗感と伝統的な素材と技術の集積である「京都クオリティー」で表現するショートケーキの様な生クリームの環境
⑴有機的なコンクリートの立体造形にベネチアンスタッコと磨き漆喰の東西の技術のハイブリッドの仕上げでショートケーキの生クリームの表情を思わせる形状をもつ壁と柱に空間は包まれています。
⑵環境全体を統括する床は、「ケーキスタジオ」の持つ工場感の象徴である「ステンレス」でヴェルサイユ宮殿の床を由来に持つ「寄木張り」を表現することで、西洋建築の軸線上にある「今」を表現しています。
⑶空間を包括する様に壁面に取り付けられたサインは、ショートケーキにのせられた完熟の苺の様に赤く、ゼリーの様に弾力のあるサインベースに 鏡面のマールブランシュのMマークを半分沈み込ませて、この環境を象徴する菓子の柔らかな表情を演出しています。
⑷左の柱にはケーキ、右の柱にはギフトの打ち出しの商品の内照式のポスター、ルネサンス様式に代表される西洋家具のようなオープン陳列台はコーディネートテーブルとしてVP(ビジュアル・ポイント)、PP(ポイント・プレゼンテーション)の役割を持っています。
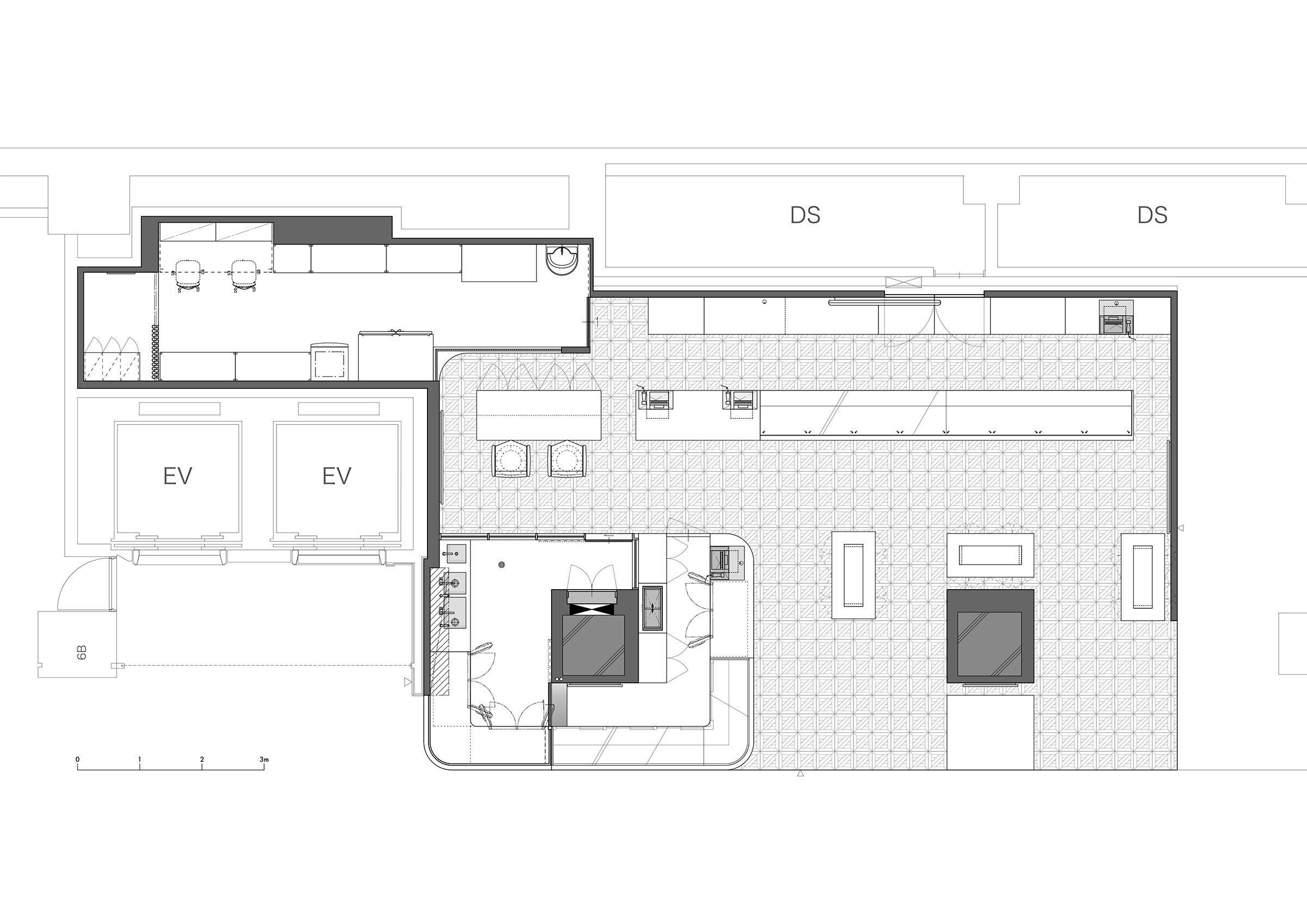
⑸空間の主役ケーキ売り場は、クリームの液体感を表現する有機的なフォルムに削られた大理石のカウンターと天井に挟まれたショーケース。緩やかなS字の形状でギフトコーナーへと流れて空間の一体感を醸し出しています。
⑹さらにすべてのカウンターの上部には、セラミックで作られた帯状の「フリル絞り」のシャンデリアが「可愛らしい高級感」を演出しています。
⑺ケーキをつくる、ケーキを考える、ケーキの教室、お客様(VIP)のカウンセリング、様々な用途の「ケーキスタジオ」の売り場正面の窓からは、常にゆっくりと回転する多段式の「ケーキコンポートスタンド」がつくりたてケーキのディスプレイとしてお客様の目を惹きつけます。
⑻ギフト売り場から見える「ケーキスタジオ」は、北山本店と同様のブドウ柄のヴェネチアンカットガラスに西洋建築の象徴としたヴォールトの形状の窓を通して見え隠れし、「シェフクッキーの椅子」と整然と棚に並ぶ銅製の菓子型や調理器具がケーキ作りの臨場感をアートの様に表現します。
⑼ギフト売り場を象徴する大理石のモザイクで表現する「茶の菓・松」
SPECIFICATIONS
- クライアント
- 株式会社ロマンライフ
- WEBSITE
- https://www.romanlife.co.jp
- 所在地
- 京都府京都市下京区四条通高倉西入立売西町79 大丸京都店B1F
Daimaru Kyoto B1F, 79, Tachiurinishi-cho, Takakura Nishiiri, Shijyo-dori, Shimogyou-ku, Kyoto-shi, Kyoto - 竣工
- 2025年9月27日
- 設計
- 辻村 久信・大貫 善哉
- 協力
- グラフィックデザイン 三木健デザイン事務所
- 施工
- 大和工業株式会社 前海弘和
- 撮影
- wheel 村上 登志彦
- 工事種別
- 新装
- 用途
- 物販
- 計画面積
- 110.90㎡
- 工期
- 2025年7月27日〜2025年9月26日
- 施工協力
- 照明器具 株式会社Modulex 田口 隼人・泉 香葉
特注照明 株式会社ひかり 犬丸 堅二郎
左官塗装 株式会社ARACO 荒木 俊成
ホイップクリーム装飾 株式会社アートストック 山本 剛
モザイクアート 株式会社モザイクジャパン 青木 久明
サイン 株式会社ダイカン 寺田 優
クッキーチェア 株式会社アルク 藤本 清春
冷蔵ショーケース 株式会社アリガ 武田祐平
厨房機器 株式会社タニコー 古谷忠雄 - マテリアル
- 床 モルタル下地 塩ビタイル(300角パーケット)貼り
壁 PBt12.5mm下地 左官漆喰塗装(ホイップクリーム装飾)
天井 PBt12.5mm下地 AEP塗装
什器 天板 大理石ビアンコカラーラ(水磨) / 腰 オーク板柾目無垢板(装飾模様あり)UC塗装仕上
建具 強化ガラス(引戸) / ステンレス間仕切壁・ガラス框戸 アンティーク塗装仕上 - 平面図






















